Dettagli
Descrizione
VILLA BIFAMILIARE
RESIDENZA SORGENTE
4 esclusive porzioni di ville bifamiliari in CLASSE A4
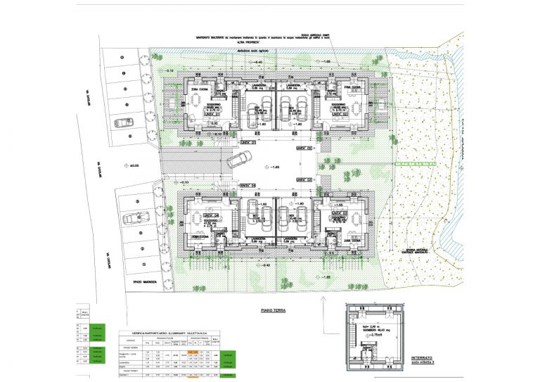
In zona tranquilla, a due passi dal centro e dai principali servizi, realizzeremo per voi ed insieme a voi 4 esclusive soluzioni disposte su due livelli.
Ogni soluzione sarà circondata su 3 lati da giardino di proprietà con portico.
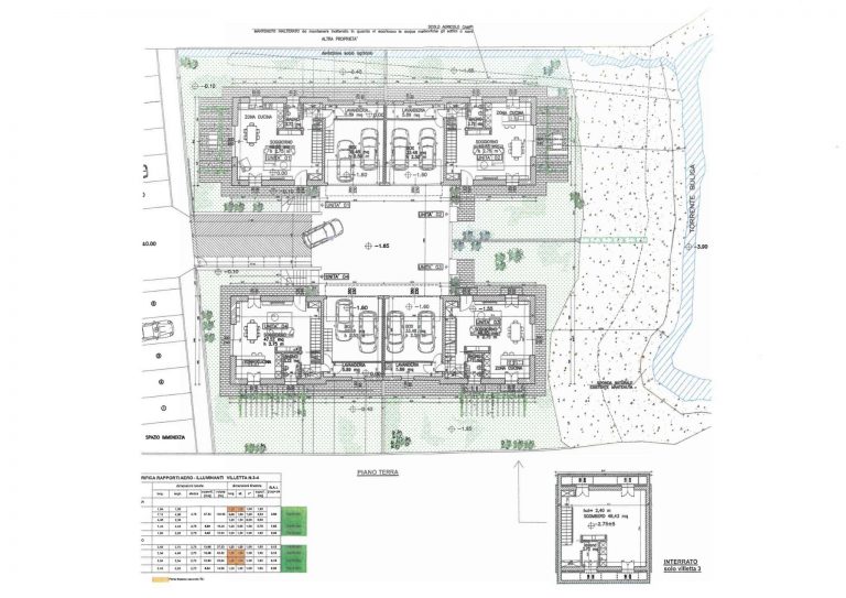
L’unità abitativa ha consistenza di circa 147 mq circa commerciali (escluso box e servizi).
VILLA N.2
Il progetto prevede un’ampia zona giorno al piano terra con cucina a vista (possibilità di renderla abitabile), e bagno. Il piano terra è caratterizzo con dei finestroni con vista sull’area esterna di proprietà.
Collegata da comoda scala si accede al piano primo dove sono previste 3 camere, di cui 2 matrimoniali, oltre il bagno e balcone.
Giardino esclusivo di 345 mq su 3 lati.
Completa la soluzione un box doppio in larghezza di 33 mq oltre a locale tecnico/lavanderia.
Termoautonomo con riscaldamento Full Electric a pavimento, pompa di calore per la produzione di acqua calda sanitaria con bollitore serbatoio buffer 200/400 litri con pannello solare termico, pannelli fotovoltaici da 5 KW, impianto VMC (ventilazione meccanica forzata) a doppio flusso con recupero di calore, serramenti esterni in PVC con vetro isolato termicamente e acusticamente con apertura a vasistas, persiane esterne in alluminio, sanitari sospesi, videocitofono, predisposizione dell’allarme e basculante del box elettrica.
Soluzione GAS-FREE!!
Finiture interne a scelta.
Struttura moderna e ricercata, dai colori eleganti e sobri, rifiniture di pregio e tecnologie avanzate, isolamento a cappotto, riscaldamento con pannelli radianti a pavimento, salubrità degli ambienti con comfort abitativo.
Dotazione di posti auto esterni, inserimento in contesto interamente recintato e tranquillo affacciante su piazzetta interna comune con vialetto accesso privato il tutto presidiato con recinzioni e cancello pedonale – carraio.
Prenota la casa dei tuoi sogni. Chiamaci per fissare un appuntamento e progettare insieme a noi la tua prossima casa.
VALUTASI PERMUTA
– Le indicazioni riportate devono essere considerate indicative e non hanno alcun contenuto contrattuale; le planimetrie e le metrature commerciali sono puramente indicative. –
Efficienza energetica
A4
A3
A2
A1
B
C
D
E
F
G
